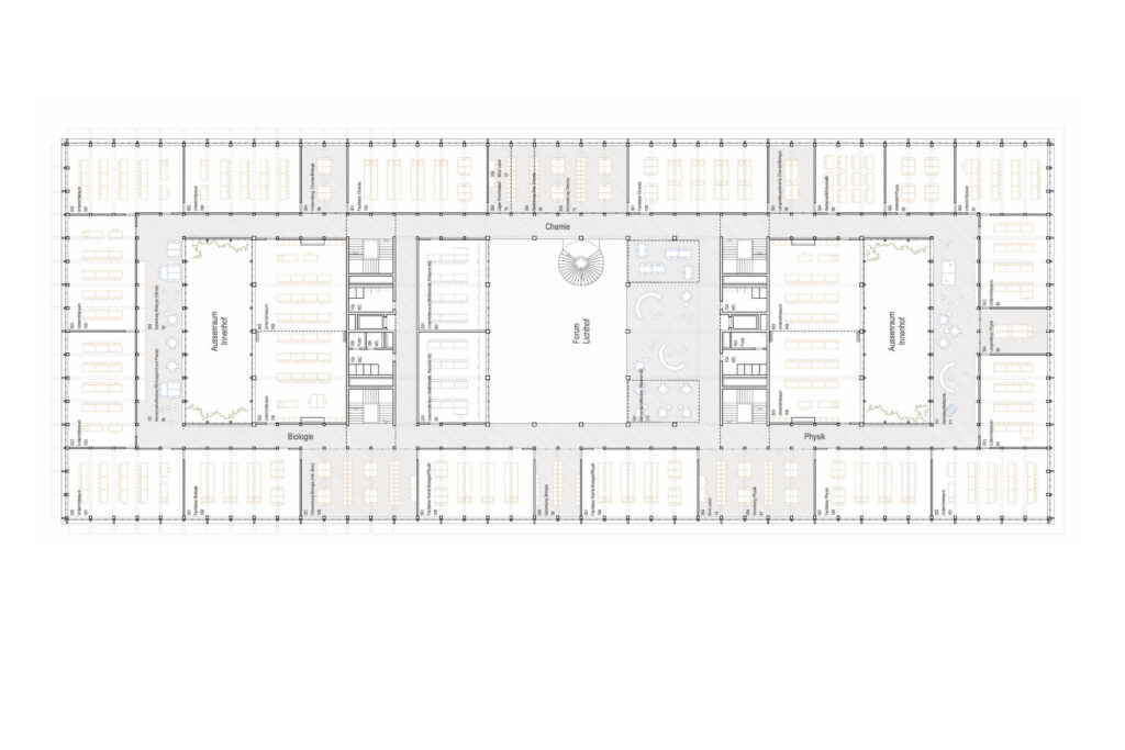
Kantonsschule Wohlen, Wohlen AG

Kantonsschule Wohlen, Wohlen AG

Objekt

Kantonsschule Wohlen

Ort

Wohlen AG

Jahr

2026

Auftragsart

offener Wettbewerb

Architektur

Arge Cometti Truffer Hodel Architekten AG / kooperativ hb GmbH

Team

Norbert Truffer, Jonas Bachmann, Lukas Hodel, Mery Senekovic, Henriett Halmi-Bachmann, Fabian Theiler, Jon Wüthrich

Beteiligte

Freiraum

Uniola AG, Zürich

Tragwerk

blesshess AG, Luzern

Gebäudetechnik HLK

Waldhauser + Hermann AG, Basel

Baumanagement

EXA Baumanagement AG, Luzern

Brandschutz, Elektroplanung, PV

Scherler AG, Luzern

Nachhaltigkeit

DB-Beratungen, Bern

Bauphysik, Akustik

Martinelli + Menti AG, Luzern